Hoppa till huvudinnehåll

Lupinvägen 15, Löddeköpinge

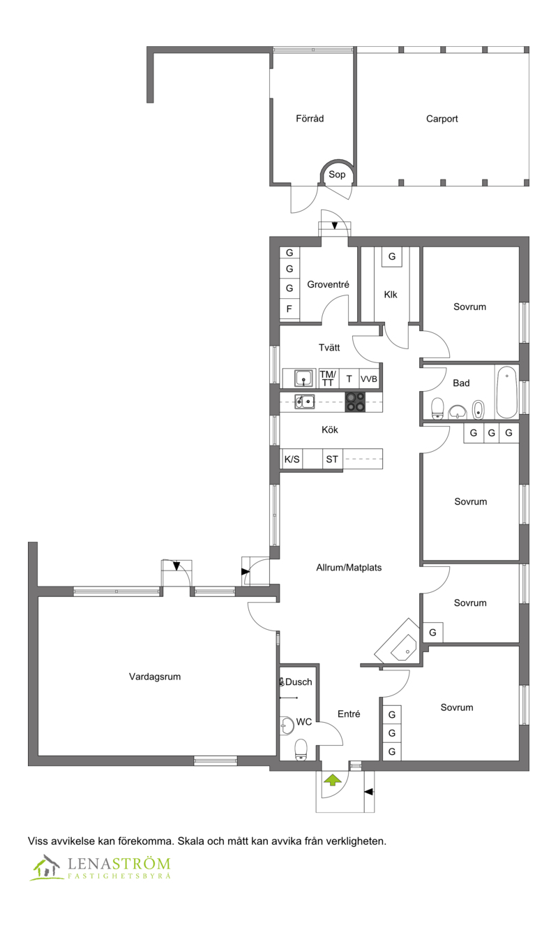
Planlösning
Planlösning